Tiempo restante:
   
Progreso

1ra Parte
Información Personal y Datos Generales

1/2Por favor completa tu información personal

 

2/2Por favor completa tu información laboral

2da Parte
Conocimiento del mercado laboral de Quito

1/1Por favor contesta las siguientes preguntas

3ra Parte
Pruebas Socioemocionales

Este cuestionario consta de 70 frases. Lea cada frase con atención y marque la alternativa que refleje mejor su acuerdo o desacuerdo con ella. NO hay respuestas correctas ni incorrectas. Conteste de forma sincera y exprese sus opiniones de la manera más precisa posible. Dé una respuesta a todas las frases

Indique la alternativa que refleje mejor su acuerdo o desacuerdo con las siguiente afirmación:

1/70A menudo me siento inferior a los demás.

Indique la alternativa que refleje mejor su acuerdo o desacuerdo con las siguiente afirmación:

2/70Soy una persona alegre y animosa.

Indique la alternativa que refleje mejor su acuerdo o desacuerdo con las siguiente afirmación:

3/70A veces, cuando leo poesía o contemplo una obra de arte, siento una profunda emoción o excitación.

Indique la alternativa que refleje mejor su acuerdo o desacuerdo con las siguiente afirmación:

4/70Tiendo a pensar lo mejor de la gente.

Indique la alternativa que refleje mejor su acuerdo o desacuerdo con las siguiente afirmación:

5/70Parece que nunca soy capaz de organizarme.

Indique la alternativa que refleje mejor su acuerdo o desacuerdo con las siguiente afirmación:

6/70Rara vez me siento con miedo o ansioso.

Indique la alternativa que refleje mejor su acuerdo o desacuerdo con las siguiente afirmación:

7/70Disfruto mucho hablando con la gente.

Indique la alternativa que refleje mejor su acuerdo o desacuerdo con las siguiente afirmación:

8/70La poesía tiene poco o ningún efecto sobre mí.

Indique la alternativa que refleje mejor su acuerdo o desacuerdo con las siguiente afirmación:

9/70A veces intimido o adulo a la gente para que haga lo que yo quiero.

Indique la alternativa que refleje mejor su acuerdo o desacuerdo con las siguiente afirmación:

10/70Tengo unos objetivos claros y me esfuerzo por alcanzarlos de forma ordenada.

Indique la alternativa que refleje mejor su acuerdo o desacuerdo con las siguiente afirmación:

11/70A veces me vienen a la mente pensamientos aterradores.

Indique la alternativa que refleje mejor su acuerdo o desacuerdo con las siguiente afirmación:

12/70Disfruto en las fiestas en las que hay mucha gente.

Indique la alternativa que refleje mejor su acuerdo o desacuerdo con las siguiente afirmación:

13/70Tengo una gran variedad de intereses intelectuales.

Indique la alternativa que refleje mejor su acuerdo o desacuerdo con las siguiente afirmación:

14/70A veces consigo con artimañas que la gente haga lo que yo quiero.

Indique la alternativa que refleje mejor su acuerdo o desacuerdo con las siguiente afirmación:

15/70Trabajo mucho para conseguir mis metas.

Indique la alternativa que refleje mejor su acuerdo o desacuerdo con las siguiente afirmación:

16/70A veces me parece que no valgo absolutamente nada.

Indique la alternativa que refleje mejor su acuerdo o desacuerdo con las siguiente afirmación:

17/70No me considero especialmente alegre.

Indique la alternativa que refleje mejor su acuerdo o desacuerdo con las siguiente afirmación:

18/70Me despiertan la curiosidad las formas que encuentro en el arte y en la naturaleza.

Indique la alternativa que refleje mejor su acuerdo o desacuerdo con las siguiente afirmación:

19/70Si alguien empieza a pelearse conmigo, yo también estoy dispuesto a pelear.

Indique la alternativa que refleje mejor su acuerdo o desacuerdo con las siguiente afirmación:

20/70Tengo mucha autodisciplina.

Indique la alternativa que refleje mejor su acuerdo o desacuerdo con las siguiente afirmación:

21/70A veces las cosas me parecen demasiado sombrías y sin esperanza.

Indique la alternativa que refleje mejor su acuerdo o desacuerdo con las siguiente afirmación:

22/70Me gusta tener mucha gente alrededor.

Indique la alternativa que refleje mejor su acuerdo o desacuerdo con las siguiente afirmación:

23/70Encuentro aburridas las discusiones filosóficas.

Indique la alternativa que refleje mejor su acuerdo o desacuerdo con las siguiente afirmación:

24/70Cuando me han ofendido, lo que intento es perdonar y olvidar.

Indique la alternativa que refleje mejor su acuerdo o desacuerdo con las siguiente afirmación:

25/70Antes de emprender una acción, siempre considero sus consecuencias.

Indique la alternativa que refleje mejor su acuerdo o desacuerdo con las siguiente afirmación:

26/70Cuando estoy bajo un fuerte estrés, a veces siento que me voy a desmoronar.

Indique la alternativa que refleje mejor su acuerdo o desacuerdo con las siguiente afirmación:

27/70No soy tan vivo ni tan animado como otras personas.

Indique la alternativa que refleje mejor su acuerdo o desacuerdo con las siguiente afirmación:

28/70Tengo mucha fantasía.

Indique la alternativa que refleje mejor su acuerdo o desacuerdo con las siguiente afirmación:

29/70Mi primera reacción es confiar en la gente.

Indique la alternativa que refleje mejor su acuerdo o desacuerdo con las siguiente afirmación:

30/70Trato de hacer mis tareas con cuidado, para que no haya que hacerlas otra vez.

Indique la alternativa que refleje mejor su acuerdo o desacuerdo con las siguiente afirmación:

31/70A menudo me siento tenso e inquieto.

Indique la alternativa que refleje mejor su acuerdo o desacuerdo con las siguiente afirmación:

32/70Soy una persona muy activa.

Indique la alternativa que refleje mejor su acuerdo o desacuerdo con las siguiente afirmación:

33/70Me gusta concentrarme en un ensueño o fantasía y, dejándolo crecer y desarrollarse, explorar todas sus posibilidades.

Indique la alternativa que refleje mejor su acuerdo o desacuerdo con las siguiente afirmación:

34/70Algunas personas piensan de mí que soy frío y calculador.

Indique la alternativa que refleje mejor su acuerdo o desacuerdo con las siguiente afirmación:

35/70Me esfuerzo por llegar a la perfección en todo lo que hago.

Indique la alternativa que refleje mejor su acuerdo o desacuerdo con las siguiente afirmación:

36/70A veces me he sentido amargado y resentido.

Indique la alternativa que refleje mejor su acuerdo o desacuerdo con las siguiente afirmación:

37/70En reuniones, por lo general prefiero que hablen otros.

Indique la alternativa que refleje mejor su acuerdo o desacuerdo con las siguiente afirmación:

38/70Tengo poco interés en andar pensando sobre la naturaleza del universo o de la condición humana.

Indique la alternativa que refleje mejor su acuerdo o desacuerdo con las siguiente afirmación:

39/70Tengo mucha fe en la naturaleza humana.

Indique la alternativa que refleje mejor su acuerdo o desacuerdo con las siguiente afirmación:

40/70Soy eficiente y eficaz en mi trabajo.

Indique la alternativa que refleje mejor su acuerdo o desacuerdo con las siguiente afirmación:

41/70Soy bastante estable emocionalmente.

Indique la alternativa que refleje mejor su acuerdo o desacuerdo con las siguiente afirmación:

42/70Huyo de las multitudes.

Indique la alternativa que refleje mejor su acuerdo o desacuerdo con las siguiente afirmación:

43/70A veces pierdo el interés cuando la gente habla de cuestiones muy abstractas y teóricas.

Indique la alternativa que refleje mejor su acuerdo o desacuerdo con las siguiente afirmación:

44/70Trato de ser humilde.

Indique la alternativa que refleje mejor su acuerdo o desacuerdo con las siguiente afirmación:

45/70Soy una persona productiva que siempre termina su trabajo.

Indique la alternativa que refleje mejor su acuerdo o desacuerdo con las siguiente afirmación:

46/70Rara vez estoy triste o deprimido.

Indique la alternativa que refleje mejor su acuerdo o desacuerdo con las siguiente afirmación:

47/70A veces reboso felicidad.

Indique la alternativa que refleje mejor su acuerdo o desacuerdo con las siguiente afirmación:

48/70Experimento una gran variedad de emociones o sentimientos.

Indique la alternativa que refleje mejor su acuerdo o desacuerdo con las siguiente afirmación:

49/70Creo que la mayoría de la gente con la que trato es honrada y fidedigna.

Indique la alternativa que refleje mejor su acuerdo o desacuerdo con las siguiente afirmación:

50/70En ocasiones primero actúo y luego pienso.

Indique la alternativa que refleje mejor su acuerdo o desacuerdo con las siguiente afirmación:

51/70A veces hago las cosas impulsivamente y luego me arrepiento.

Indique la alternativa que refleje mejor su acuerdo o desacuerdo con las siguiente afirmación:

52/70Me gusta estar donde está la acción.

Indique la alternativa que refleje mejor su acuerdo o desacuerdo con las siguiente afirmación:

53/70Con frecuencia pruebo comidas nuevas o de otros países.

Indique la alternativa que refleje mejor su acuerdo o desacuerdo con las siguiente afirmación:

54/70Puedo ser sarcástico y mordaz si es necesario.

Indique la alternativa que refleje mejor su acuerdo o desacuerdo con las siguiente afirmación:

55/70Hay tantas pequeñas cosas que hacer que a veces lo que hago es no atender a ninguna.

Indique la alternativa que refleje mejor su acuerdo o desacuerdo con las siguiente afirmación:

56/70Es difícil que yo pierda los estribos.

required

Indique la alternativa que refleje mejor su acuerdo o desacuerdo con las siguiente afirmación:

57/70No me gusta mucho charlar con la gente.

Indique la alternativa que refleje mejor su acuerdo o desacuerdo con las siguiente afirmación:

58/70Rara vez experimento emociones fuertes.

Indique la alternativa que refleje mejor su acuerdo o desacuerdo con las siguiente afirmación:

59/70Los mendigos no me inspiran simpatía.

Indique la alternativa que refleje mejor su acuerdo o desacuerdo con las siguiente afirmación:

60/70Muchas veces no preparo de antemano lo que tengo que hacer.

Por favor, conteste la siguiente frase con la respuesta que considere más apropiada.

61/70Siento que soy una persona digna de aprecio, al menos en igual medida que los demás.

Por favor, conteste la siguiente frase con la respuesta que considere más apropiada.

62/70Estoy convencido de que tengo cualidades buenas.

Por favor, conteste la siguiente frase con la respuesta que considere más apropiada.

63/70Soy capaz de hacer las cosas tan bien como la mayoría de la gente.

Por favor, conteste la siguiente frase con la respuesta que considere más apropiada.

64/70Tengo una actitud positiva hacia mí mismo/a.

Por favor, conteste la siguiente frase con la respuesta que considere más apropiada.

65/70En general estoy satisfecho/a de mí mismo/a.

Por favor, conteste la siguiente frase con la respuesta que considere más apropiada.

66/70Siento que no tengo mucho de lo que estar orgulloso/a.

Por favor, conteste la siguiente frase con la respuesta que considere más apropiada.

67/70En general, me inclino a pensar que soy un fracasado/a.

Por favor, conteste la siguiente frase con la respuesta que considere más apropiada.

68/70Me gustaría poder sentir más respeto por mí mismo.

Por favor, conteste la siguiente frase con la respuesta que considere más apropiada.

69/70Hay veces que realmente pienso que soy un inútil.

Por favor, conteste la siguiente frase con la respuesta que considere más apropiada.

70/70A veces creo que no soy buena persona.

4ta Parte
Pruebas de Conocimientos y Habilidades Congnitivas

La siguiente prueba contiene 50 preguntas. Es casi imposible que termine todas, pero haga lo más que pueda. Después de que el examinador le indique que puede empezar, se le darán a usted exactamente 12 minutos para trabajar y hacer lo más que pueda. No vaya muy aprisa, pues puede cometer muchos errores y lo mejor es hacerlo lo más correcto posible. Las preguntas se van haciendo más difíciles a medida que se va avanzando; procure no saltarse ninguna. Presione en botón "siguiente" cuando se le indique y esté listo para comenzar. Apenas lo haga comenzarán a correr los 12 minutos.

Por favor, conteste las siguientes frases con la respuesta que considere más apropiada.

1/50El último mes del año es:

Por favor, conteste las siguientes frases con la respuesta que considere más apropiada.

2/50CAPTURAR es lo contrario de:

Por favor, conteste las siguientes frases con la respuesta que considere más apropiada.

3/50Todas las palabras abajo citadas se parecen entre sí ¿Cuál es la que menos parecido tiene con las otras?

Por favor, conteste las siguientes frases con la respuesta que considere más apropiada.

4/50Conteste SI o NO: R.I.P. significa “ruege a Dios por el”

Por favor, conteste las siguientes frases con la respuesta que considere más apropiada.

5/50En el siguiente conjunto de palabras ¿Cuál es diferente de las otras?

Por favor, conteste las siguientes frases con la respuesta que considere más apropiada.

6/50USUAL es lo contrario de:

Por favor, conteste las siguientes frases con la respuesta que considere más apropiada.

7/50¿Cuál figura puede hacerse de estas dos partes?



Por favor, conteste las siguientes frases con la respuesta que considere más apropiada.

8/50Vea la fila de números abajo indicados. ¿Cuál numero debe venir después?

8     4     2     1     1/2     1/4

Por favor, conteste las siguientes frases con la respuesta que considere más apropiada.

9/50CLIENTE-CONSUMIDOR. Estas palabras tienen:

Por favor, conteste las siguientes frases con la respuesta que considere más apropiada.

10/50¿Cuál de las palabras citadas abajo esta relacionada con oler, como los dientes se relacionan con la acción de masticar?

Por favor, conteste las siguientes frases con la respuesta que considere más apropiada.

11/50VERANO es lo contrario de:

Por favor, conteste las siguientes frases con la respuesta que considere más apropiada.

12/50Un avión vuela 300 metros en 1/2 segundo. A esta misma velocidad ¿Cuántos metros recorrerá en 10 segundos?

Por favor, conteste las siguientes frases con la respuesta que considere más apropiada.

13/50Suponga que las dos primeras afirmaciones son ciertas. La última es:

Estos niños son normales.
Todos los niños normales son activos.
Estos niños son activos.

Por favor, conteste las siguientes frases con la respuesta que considere más apropiada.

14/50REMOTO es lo contrario de:

Por favor, conteste las siguientes frases con la respuesta que considere más apropiada.

15/50Los dulces de limón se venden a 3 por 10 pesos. ¿Cuánto costará una docena y media?

Por favor, conteste las siguientes frases con todas las respuestas que apliquen al caso.

16/50¿Cuáles de las 5 cantidades abajo indicadas son idénticas una a la otra? (seleccione todas las que apliquen)

Por favor, conteste las siguientes frases con la respuesta que considere más apropiada.

17/50Imagine Ud. que acomoda las siguientes palabras de modo que hagan una afirmación cierta. Luego escriba la ultima letra de la ultima palabra como respuesta a este problema.

siempre   un   verbo   oración   una   tiene

Por favor, conteste las siguientes frases con la respuesta que considere más apropiada.

18/50Un niño tiene 5 años y su hermana el doble de edad que él. Cuándo el niño tenga 8 años, ¿Cuál será la edad de su hermana?

Por favor, conteste las siguientes frases con la respuesta que considere más apropiada.

19/50BAZO-VASO. Estas palabras tienen:

Por favor, conteste las siguientes frases con la respuesta que considere más apropiada.

20/50Suponga que las dos primeras afirmaciones son verdaderas. La última es:

Juan tiene la misma edad que María.
María es menor que Guillermo.
Juan es más joven que Guillermo.

Por favor, conteste las siguientes frases con la respuesta que considere más apropiada.

21/50Un negociante compró varios cuadros por $4,000.00. Los vendió en $5,000.00, ganando $50.00 en cada cuadro. ¿Cuántos cuadros compró?

Por favor, conteste las siguientes frases con la respuesta que considere más apropiada.

22/50Suponga que arregla las siguientes palabras de manera que hagan una oración completa. Si es un razonamiento verdadero ponga una (v) en el paréntesis correspondiente; si es falsa ponga una (f)

huevos   ponen   todas   las   gallinas

Por favor, conteste las siguientes frases con todas las respuestas que apliquen al caso.

23/50Dos de los siguientes proverbios tienen igual significado. ¿Cuáles son?

Por favor, conteste las siguientes frases con la respuesta que considere más apropiada.

24/50Un reloj se atrasa un minuto 18 segundos en 39 días. ¿Cuántos segundos se atrasa por día?

Por favor, conteste las siguientes frases con la respuesta que considere más apropiada.

25/50HASTA-ASTA. Estas palabras tienen:

Por favor, conteste las siguientes frases con la respuesta que considere más apropiada.

26/50Suponga que las dos primeras afirmaciones son verdaderas. La última es:

Todos los cuákeros son pacifistas.
Algunas personas en este cuarto son cuákeros.
Algunas personas en este cuarto son pacifistas.

Por favor, conteste las siguientes frases con la respuesta que considere más apropiada.

27/50En 30 días un niño ahorró $100.00 ¿Cuál fue su promedio de ahorro diario?

Por favor, conteste las siguientes frases con la respuesta que considere más apropiada.

28/50INGENIOSO-INGENUO. Estas palabras tienen:

Por favor, conteste las siguientes frases con la respuesta que considere más apropiada.

29/50Dos hombres pescaron 36 pescados: X pescó 5 veces más lo que Y ¿Cuántos pescó Y?

Por favor, conteste las siguientes frases con la respuesta que considere más apropiada.

30/50Un depósito rectangular, completamente lleno, contiene 800 metros cúbicos de granos. Si el depósito tiene 8 mts. de ancho y 10 mts. de largo ¿Qué profundidad tiene?

Por favor, conteste las siguientes frases con la respuesta que considere más apropiada.

31/50Uno de los siguientes números no encaja en la serie ¿Cuál debe estar en su lugar?

1/2     1/4     1/6     1/8     1/9     1/12

Por favor, conteste las siguientes frases con la respuesta que considere más apropiada.

32/50Conteste a esta pregunta SI ó NO: A.C. Significa "Antes de Cristo"

Por favor, conteste las siguientes frases con la respuesta que considere más apropiada.

33/50CREYENTE-CRÉDULO. Estas palabras tienen:

Por favor, conteste las siguientes frases con la respuesta que considere más apropiada.

34/50Una falda necesita 2 1/4 mts. de tela ¿Cuántas faldas pueden hacerse de 45 mts.?

Por favor, conteste las siguientes frases con la respuesta que considere más apropiada.

35/50Un reloj estaba exacto al mediodía del lunes. A las 2 p.m. del miércoles tenía un retraso de 25 segundos. A la misma velocidad ¿Cuánto se retrasó en media hora?

Por favor, conteste las siguientes frases con la respuesta que considere más apropiada.

36/50Nuestro equipo de Base-ball perdió 9 juegos en esta temporada. Esto fue 3/8 de lo que jugaron ¿Cuántos juegos jugaron en esta temporada?

Por favor, conteste las siguientes frases con la respuesta que considere más apropiada.

37/50¿Cuál es el numero que continua a los siguientes?

1     .5     .25     .125

Por favor, conteste las siguientes frases con la respuesta que considere más apropiada.

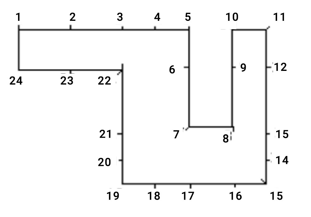
38/50Esta figura geométrica puede dividirse por una línea recta en dos partes que unidas en cierto modo hacen un cuadrado perfecto. Dibuje dicha línea juntando dos de los números. Después escriba los números que den el resultado correcto.



Por favor, conteste las siguientes frases con la respuesta que considere más apropiada.

39/50Los significados de las siguientes oraciones son:

Una escoba nueva barre mejor.
Los zapatos viejos son más cómodos.

Por favor, conteste las siguientes frases con todas las respuestas que apliquen al caso.

40/50De los cinco nombres citados abajo. ¿Cuántos son idénticos el uno del otro?

Por favor, conteste las siguientes frases con todas las respuestas que apliquen al caso.

41/50Dos de los proverbios abajo citados tienen igual significado. ¿Cuáles son?

Por favor, conteste las siguientes frases con la respuesta que considere más apropiada.

42/50Esta figura geométrica puede dividirse por una línea recta en dos partes que unidas en cierto modo hacen un cuadrado perfecto. Dibuje dicha línea juntando dos de los números. Después escriba los números que den el resultado correcto.



Por favor, conteste las siguientes frases con la respuesta que considere más apropiada.

43/50¿Cuál de los números de este grupo representa la cantidad más pequeña?

10     1     .999     .33     11

Por favor, conteste las siguientes frases con la respuesta que considere más apropiada.

44/50Los significados de las siguientes oraciones son:

Ningún hombre honrado se arrepintió de su honradez.
La honradez conduce al fracaso, aunque es ensalzada.

Por favor, conteste las siguientes frases con la respuesta que considere más apropiada.

45/50Un vendedor compra un cajón de naranjas que contiene 12 docenas a $1.80. sabe que dos docenas se pudrirán antes de que las venda ¿A qué precio por docena deberá vender las buenas para ganar 1/3 del costo total?

Por favor, conteste las siguientes frases con la respuesta que considere más apropiada.

46/50En las siguientes palabras ¿Cuál de ellas es diferente a las demás?

Por favor, conteste las siguientes frases con la respuesta que considere más apropiada.

47/50Suponga que las dos primeras afirmaciones son ciertas. La última es:

Algunos grandes hombres son ridiculizados.
Yo he sido ridiculizado.
Yo soy un gran hombre.

Por favor, conteste las siguientes frases con la respuesta que considere más apropiada.

48/50Tres hombres forman una sociedad y acuerdan dividir las ganancias por igual. X invierte $4,500.00, Y invierte $3,500.00 y Z invierte $2,000.00. Si las ganancias son de $1,500.00. ¿Cuánto menos recibe X de lo que debería haber recibido si las ganancias hubieran sido proporcionales a lo que invirtió cada uno?

Por favor, conteste las siguientes frases con todas las respuestas que apliquen al caso.

49/50Cuatro de las siguientes 5 partes pueden colocarse juntas de tal manera que formen un triángulo ¿Cuáles son?



Por favor, conteste las siguientes frases con la respuesta que considere más apropiada.

50/50Al imprimir un artículo de 30,000 palabras, el impresor decide usar dos tamaños de letra. Al usar la letra más grande, una página impresa contiene 1,200 palabras. Al usar la letra más pequeña, una página contiene 1,500 palabras. Se le permite en la revista al ya mencionado artículo 22 páginas. ¿Cuántas páginas deberán usarse para la letra pequeña?

¡Has completado todo el proceso!

Finalizar

Welcome to Quote

An mei sadipscing dissentiet, eos ea partem viderer facilisi. Brute nostrud democritum in vis, nam ei erat zril mediocrem. No postea diceret vix. Mei eu scripta dolorum voluptatibus, id omnes repudiare pri.

Responsive site design

Usu habeo equidem sanctus no. Suas summo id sed, erat erant oporteat cu pri. In eum omnes molestie. Sed ad debet scaevola, ne mel.

Web site check

Usu habeo equidem sanctus no. Suas summo id sed, erat erant oporteat cu pri. In eum omnes molestie. Sed ad debet scaevola, ne mel.

Email campaigns

Usu habeo equidem sanctus no. Suas summo id sed, erat erant oporteat cu pri. In eum omnes molestie. Sed ad debet scaevola, ne mel.

Seo optimization

Usu habeo equidem sanctus no. Suas summo id sed, erat erant oporteat cu pri. In eum omnes molestie. Sed ad debet scaevola, ne mel.


A brief about QuoteSuas summo id sed, erat erant oporteat cu pri.

Cum iusto nonumes dignissim ad, movet vocent ceteros nec ut. Eu putent utroque ius, ei usu purto doctus, ludus nostrud consectetuer ex pri. Maiorum petentium similique duo id. Sea ex nostro offendit, ius sumo electram theophrastus et. Nam eu dolore aliquid laoreet, ei eos tacimates assueverit inciderint. His deserunt recteque consequat in. Vis mucius virtute consequat ad, suavitate interesset an mei, oporteat temporibus at sea.

MissionSuas summo id sed, erat erant oporteat cu pri.

Cum iusto nonumes dignissim ad, movet vocent ceteros nec ut. Eu putent utroque ius, ei usu purto doctus, ludus nostrud consectetuer ex pri. Maiorum petentium similique duo id. Sea ex nostro offendit, ius sumo electram theophrastus et. Nam eu dolore aliquid laoreet, ei eos tacimates assueverit inciderint. His deserunt recteque consequat in. Vis mucius virtute consequat ad, suavitate interesset an mei, oporteat temporibus at sea.

Address

Duo magna vocibus electram ad. Sit an amet aeque legimus, paulo mnesarchum et mea, et pri quodsi singulis.

11 Fifth Ave - New York, 45 001238 - USA

Get directions

Email and website

Duo magna vocibus electram ad. Sit an amet aeque legimus, paulo mnesarchum et mea, et pri quodsi singulis.

Email: support@domain.com
Website: www.quote.com

Telephone

Duo magna vocibus electram ad. Sit an amet aeque legimus, paulo mnesarchum et mea, et pri quodsi singulis.

Tel: +44 543 53433
Fax: +44 543 5322